Отличный дом!
| Стоимость | 24 900 000 |
|---|---|
| Комнат в доме | 5 |
| Категория земли | ИЖС |
| Тип комнат | Изолированные |
| Кадастровый номер участка | 50:12:0080114:572 |
| Право собственности | Посредник |
| Тип парковки | Открытая во дворе |
| Ремонт | Требуется ремонт |
| Категория земли Avito | Индивидуальное жилищное строительство (ИЖС) |
| Способ связи avito | По телефону |
| Материал стен (Авито дома) | Газоблоки |
| Тип отопления cian | Электрическое |
| Тип дома cian | Газосиликатный блок |
| Водоснабжение avito | Центральное |
| Канализация avito | Центральная |
| Газ avito | Нет |
| Водоснабжение (cian) | Центральное |
| Электричество | Есть |
| Канализация (cian) | Центральная |
| Тип строения | Дом |
| Площадь, кв.м. | 191 |
| Площадь участка, сот | 5 |
| Этажность | 2 |
| Материал стен | Кирпич |
| Отопление | Электро |
| Населенный пункт | деревня Грибки |
|---|---|
| Улица | улица Виноградная |
Продам дом в 5 км от МКАД!
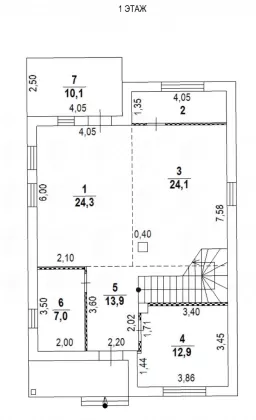
Построен с соблюдением всех строительных норм. Фундамент - монолитная плита, перекрытия - монолитный, стены - газосиликатный блок. Произведена разводка всех коммуникаций, электрики, отопления и водоснабжения с использованием высококачественных дорогих материалов, крыша из мягкой кровли. Дом подключен к центральному водопроводу, центральной канализации, подана заявка на подключение к центральному газопроводу, заведен интернет. В настоящее время оборудовано электрическое отопление и нагрев воды. В доме на первом этаже просторная кухня-гостиная, гостевая спальня/кабинет, борйлерная, санузел, выход на террасу. На втором этаже 3 спальни, выход на балкон, просторный санузел и гардеробная. Дом полностью готов к чистовой отделке, частично установлено сантехническое оборудование. Готовы сделать чистовую отделку.
Отличные подъездные пути - асфальт. Дом имеет выход на 2 дороги: центральный въезд с основной дороги и выход на закрытый проезд, организованные для 9-ти домов, огороженных в едином стиле. Выход в лес, очень приличное окружение, зеленые ухоженная территория и многолетние деревья. Место очень тихое. Ровный и сухой участок. Имеется три въезда: со стороны Афанасовского шоссе, с Дмитровского шоссе, со стороны яхт-клуба Адмирал. Хорошая инфраструктура, частные и государственные детские сады и школы, продуктовые магазины. В пешей доступности автобусная остановка (маршрут до метро Алтуфьево). В 4 км. Клязьминское водохранилище: яхт-клуб Адмирал (с прокатом водной техники, песчаными пляжами). Дом находится недалеко от Клязьминского лесопарка. В 4 км. открылось метро "Физтех"! Документы в порядке, возможен обмен на квартиру с доплатой, звоните!




























































